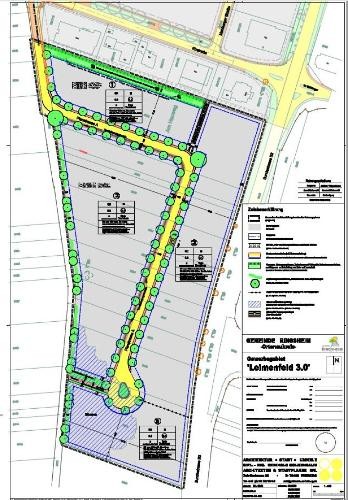
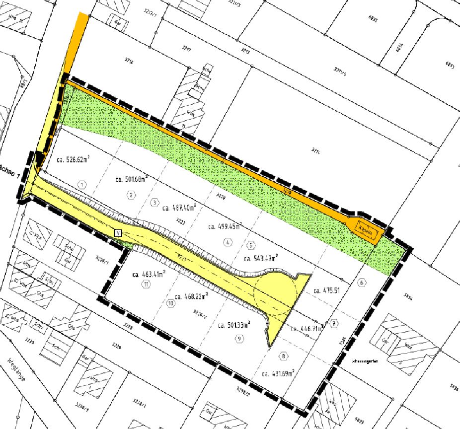
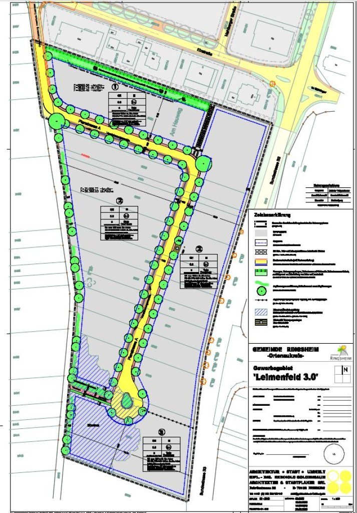
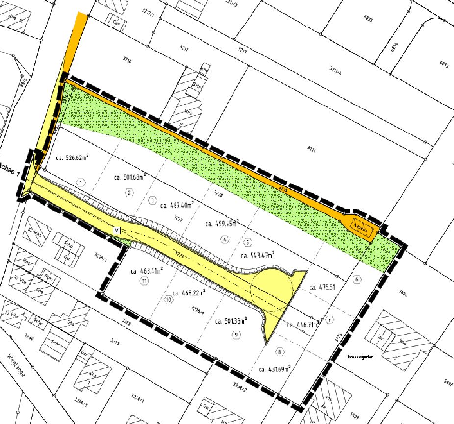
Übersicht über Bebauungspläne
Konkrete Planungsabsichten werden durch das Aufstellen von Bebauungsplänen für Teilgebiete der Gemeinde verbindlich. Die Bebauungspläne werden nach einem intensiven Planungsverfahren und einer Beteiligung der Öffentlichkeit vom Gemeinderat als Satzung beschlossen und sind ein "Gesetz" auf Gemeindeebene.
Die geltenden Bebauungspläne werden derzeit nach und nach digitalisiert. Die bisher bereits digitalisierten Bebauungspläne sehen Sie nachfolgend:











